Zerostar Plus alçıpan müdahale kapakları montaj yapılacak yerlere alttan geçmeli olarak uygulanır.
Zerostar alçı plaka müdahale kapaklarının iç çerçevesi tırnaklı kenar tasarımı nedeni ile sıva ve astar uygulamasına gerek kalmaz.
Bu müdahale kapakları uygulandığı yerlerde dış çerçeve kenarına sıva yapılmasına gerek kalmaz. Montaj uygulamalarında dış çerçevenin sabitlenmesi için özel hareketli kenar sabitleme profillerinden vidalanarak sabitlenir. Görünüm olarak pervaz kısmı 3.5 cm olarak her kenarından görülür.
Zerostar alçı plakalı revizyon alçıpan kapağı özellikleri, fiyatı;
Zerostar Plus Alçıpan Müdahale Kapağı Özellikleri
- Alüminyum iç ve dış çerçeve
- Sıfır konstrüksiyon (kutu profil) detaylarında uygulanabilen dizayn seçeneği
- Sıfır konstrüksiyon (kutu profil) ile montajının tamamlanmasını sağlayan hareketli özel tasarım bağlantı aparatları
- Özel iç kapak profil dizaynı ile yapıştırma sistemi ile vidasız alçı plaka montajı
- İç kapakta astar gerektirmeden boyanabilen yüzey
- Dokunmatik açılım sağlayan sökülebilir swich sistemi
- Dış kapaktan tamamen ayrılabilen iç kapak
- İç kapağın belirli bir açıda sabit kalmasını sağlayan tel sistemi

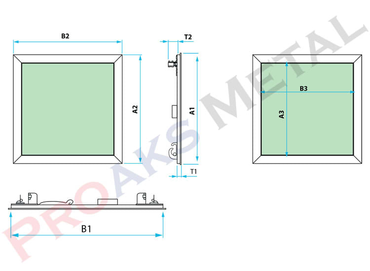
| Sipariş Kodu | Ölçü | Montaj Kapak Ölçüsü | Dış Kapak Ölçüsü | İç Kapak Ölçüsü | Çerçeve Yükseklik | Brüt Ağırlık (Gram) | Paket Miktarı |
|---|---|---|---|---|---|---|---|
| A1xB1 | A2xB2 | A3xB3 | T1xT2 | ||||
| 3720 | 250×250 | 248×248 | 270×270 | 198×198 | 12,5×60 | 780 g | 10 Adet |
| 3730 | 300×300 | 298×298 | 320×320 | 248×248 | 12,5×60 | 1300 g | 10 Adet |
| 3736 | 300×600 | 298×598 | 320×620 | 248×548 | 12,5×60 | 2055 g | 10 Adet |
| 3740 | 400×400 | 398×398 | 420×420 | 348×348 | 12,5×60 | 2000 g | 10 Adet |
| 3746 | 400×600 | 398×598 | 420×620 | 348×548 | 12,5×60 | 2700 g | 8 Adet |
| 3745 | 450×450 | 448×448 | 470×470 | 398×398 | 12,5×60 | 2350 g | 8 Adet |
| 3750 | 500×500 | 498×498 | 520×520 | 448×448 | 12,5×60 | 2700 g | 8 Adet |
| 3760 | 600×600 | 598×598 | 620×620 | 548×548 | 12,5×60 | 3400 g | 6 Adet |
Palet İçeriği
250×250 mm. Palet Miktarı 560 adettir. Palet Ölçüsü 80 x 120 x 200 cm (En x Boy x Yükseklik)
300×300 mm. Palet Miktarı 540 adettir. Palet Ölçüsü 110 x 130 x 225 cm (En x Boy x Yükseklik)
400×400 mm. Palet Miktarı 300 adettir. Palet Ölçüsü 100 x 120 x 240 cm (En x Boy x Yükseklik)
500×500 mm. Palet Miktarı 192 adettir. Palet Ölçüsü 100 x 120 x 235 cm (En x Boy x Yükseklik)
600×600 mm. Palet Miktarı 144 adettir. Palet Ölçüsü 100 x 135 x 210 cm (En x Boy x Yükseklik)
Ürün Tanımı
Asma tavan, bölme duvar sistemlerinde duvar ve tavan arasındaki boşlukta yer alan elektrik panosu, sigorta kutusu, su vanası vb. ulaşılması gereken tesisat sistemine ulaşmayı sağlayan yapı malzemesidir. Müdahale kapakları iç ve dış birer çerçeveden oluşmaktadır. Çerçeveler alüminyum hammaddeden üretilmiş olup elektrostatik toz boyalıdır. Sistem üzerindeki hareketli ve sabit malzemeler özel kaplamalı, korozyona mukavemetli galvaniz ham maddeden üretilmiştir.
Kullanım Talimatı
Müdahale kapağının montaj boşluğu montaj kapak ölçüsünden +6mm fazla olmalıdır. Duvar uygulamalarında switchler üst tarafta olmalıdır. Müdahale kapağının dış çerçevesinin montajından sonra iç çerçeve çıkarılıp sıva ve boya işlemlerinin ayrı ayrı yapılması gereklidir.
Ürün Saklama Koşulları
Tüm müdahale kapaklarının boyalı olan ürünlerin yüzey hassasiyetinden ayrıca kapak kurulumundan sonra sistemin düzgün çalışabilmesi için ürünlerin darbe almadan düz bir zeminde ve içindeki alçı plakadan dolayı suya temas etmeden muhafaza edilmesi gerekmektedir.












Değerlendirmeler
Henüz değerlendirme yapılmadı.